
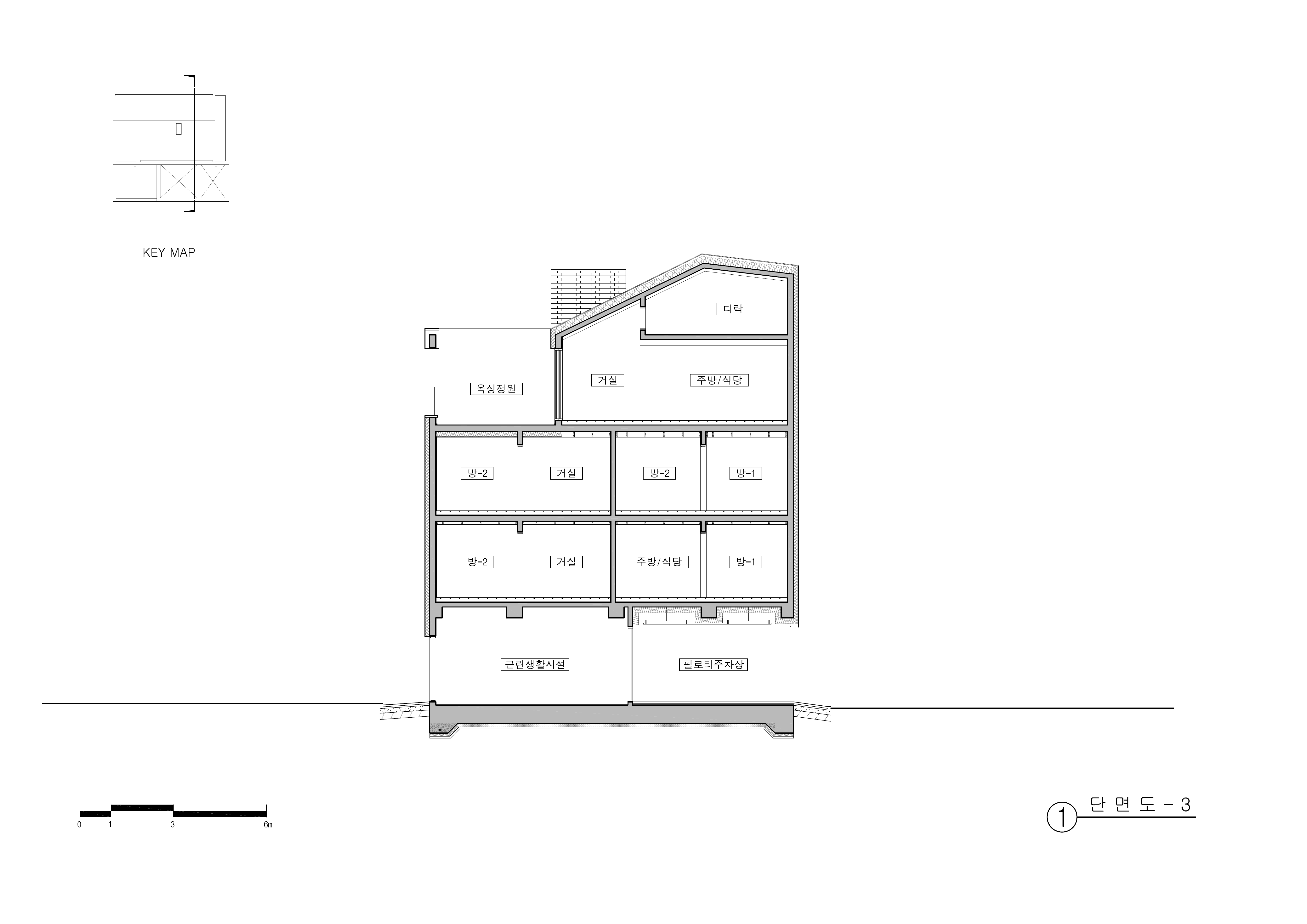
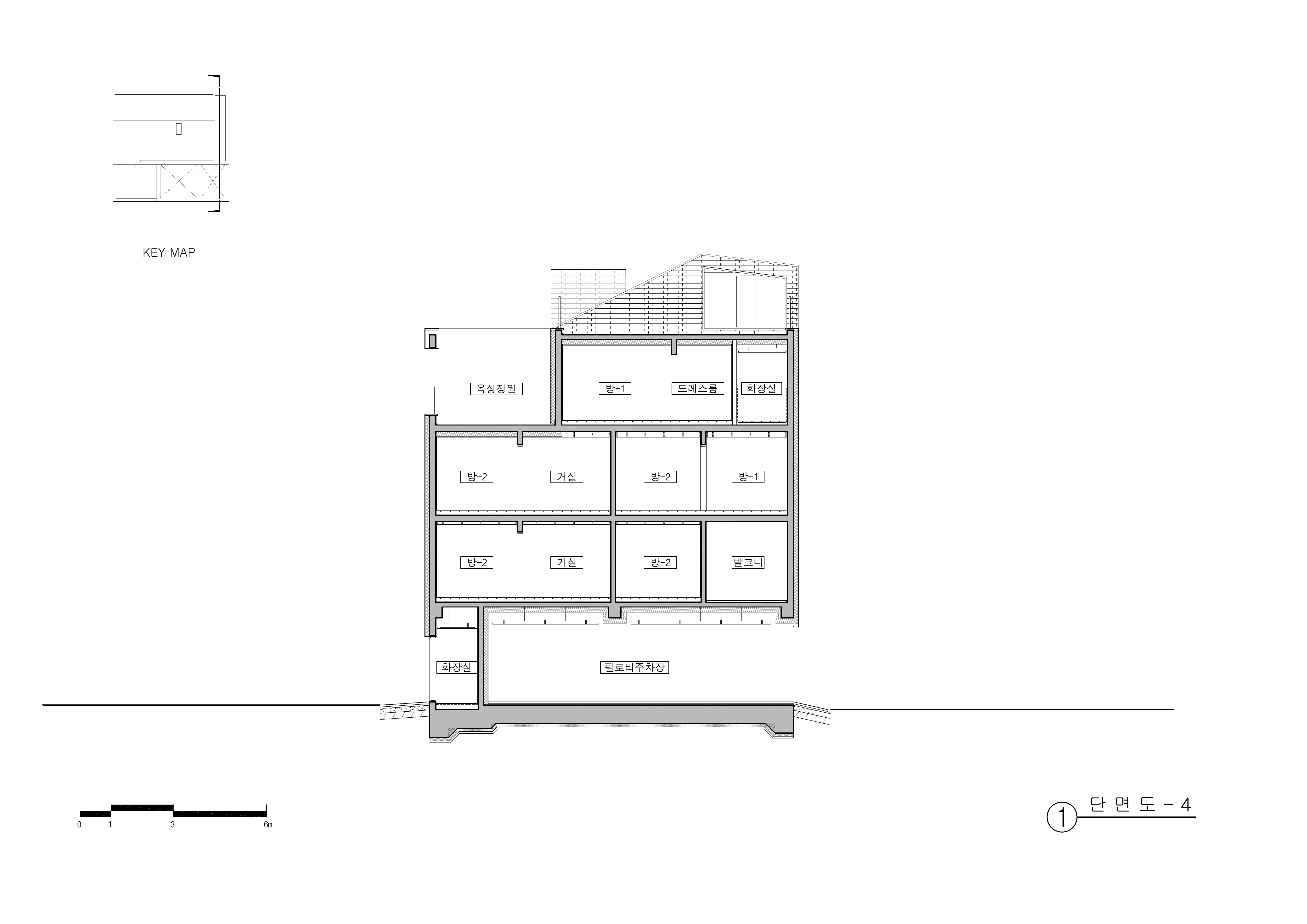
IAN House was designed with the combination of materials and colors in mind so that it could become an effective interior space and exterior form that complies with the maximum legal volume without segmenting the mass or wasting space. The red brick tiles, the accent color at the upper part of the mass, represent the client’s house, and a yard and attic space, which are merits of a detached house, were planned.

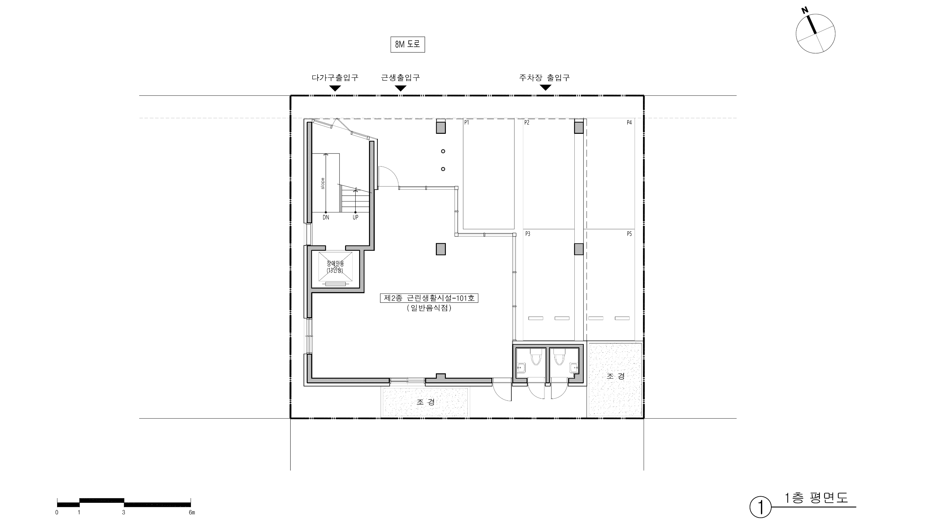
이안 하우스는 매스의 분절이나 공간의 낭비 없이 준수한 외부 조형만으로 효율적인 내부 공간을 가질 수 있도록 계획한 다가구주택이다. 이안하우스의 특징은 재료와 색상의 조합인데, 건축물 상부에 포인트 컬러로 적색 브릭 타일이 사용됐다. 이 부분은 건축주가 거주하는 세대를 의미하고 있으며, 건축주가 거주하는 세대는 마치 단독주택 같은 공간을 거주자들이 가질 수 있도록 마당과 다락 공간이 배치되어 있다.



















Architects atelier CIUM
Location Deogyang-gu, Goyang-si, Gyeonggi-do, Republic of Korea
Site area 229.8㎡
Building area 135.84㎡
Gross floor area 398.03㎡
Building to land ratio 59.11%
Floor area ratio 173.21%
Construction period 2020. 04 - 2021. 01
Completion 2021. 02
Principal architect Jinho Kim
Project architect Junewoo Baek
Design team Shinwoo Kim, Minseok Kang
Structural engineer gwanglim structural engineering
Mechanical engineer Hanbuk engineering
Electrical engineer Hanbuk engineering
Construction SeHyung Construction Co., Ltd
Photographer Sanghyeon Lee
해당 프로젝트는 리빙즈, 디테일 04호에 게재되었습니다.
The project was published in LIVINGS, Detail 04
[BOOK] LIVINGS, Detail 리빙즈, 디테일 03호, 04호
<LIVINGS, Detail 리빙즈, 디테일 03호, 04호> 72개의 형태와 라이프스타일을 담은 주거공간, 국내외 “디테일한 주택 프로젝트”의 엮음 매월 국내외 다양한 건축물들을 소개해 온 <월간 건축문화>가 <
www.masilwide.com
'Architecture Project > Multifamily' 카테고리의 다른 글
| UIWANG HOUSING (0) | 2022.06.27 |
|---|---|
| HWADAMJAE (0) | 2022.06.24 |
| TH PALACE (0) | 2022.06.22 |
| VARANDA (0) | 2022.06.22 |
| BANSEOK HOUSE (0) | 2022.06.21 |
마실와이드 | 등록번호 : 서울, 아03630 | 등록일자 : 2015년 03월 11일 | 마실와이드 | 발행ㆍ편집인 : 김명규 | 청소년보호책임자 : 최지희 | 발행소 : 서울시 마포구 월드컵로8길 45-8 1층 | 발행일자 : 매일



