
Reconstruction of a Brutalist Icon
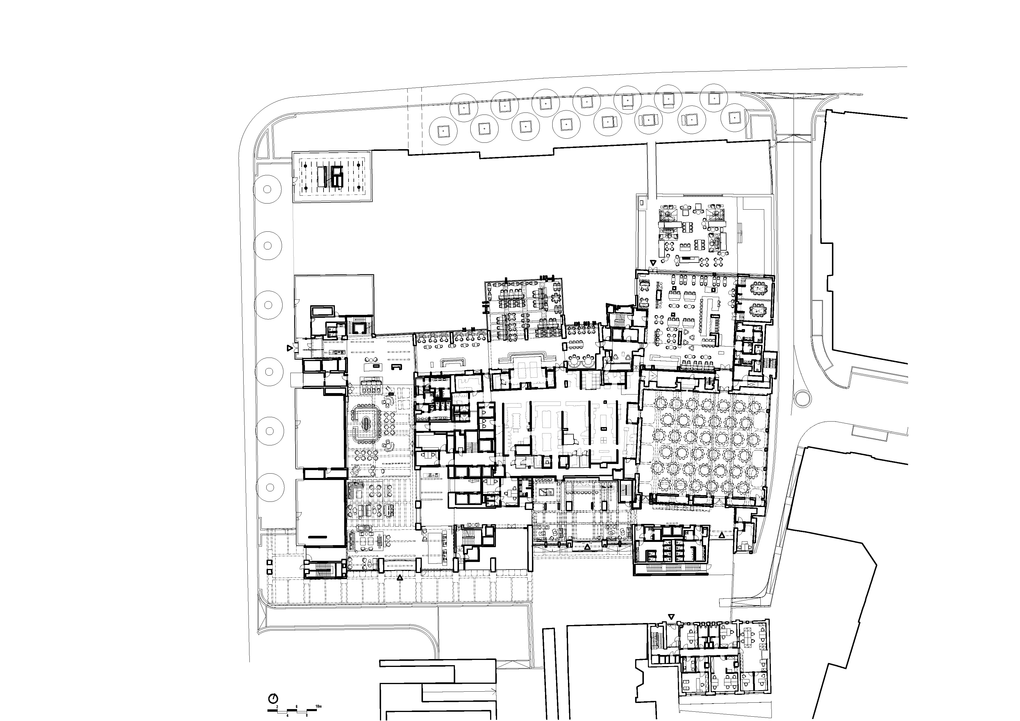
1968년부터 1974년 사이에 지어진 구 인터컨티넨탈 호텔은 체코슬로바키아 모더니즘의 대표적 건축물로, 장인정신과 문화적 야망을 보여주는 상징이었다. 그러나 수십 년의 쇠퇴와 1990년대의 부적절한 리노베이션을 거치며 그 위상을 잃었다. 철거 대신 보존을 택한 세 명의 체코 기업가는 타크 아키텍츠 (TaK Architects)를 중심으로, 페어몬트 호텔 & 리조트(Fairmont Hotels & Resorts)와 시공사 메트로스타브(Metrostav)의 협업을 통해 5년에 걸친 재생 프로젝트를 진행했다.
이번 복원은 원형 보존과 혁신을 조화시키는 데 중점을 두었다. 건물 곳곳에 남은 원작 예술품과 디테일은 세심하게 복원되었고, 여기에 새로운 건축적 층위, 현대미술, 지속 가능한 기술이 더해졌다. 그 결과, 건물은 단순한 숙박 시설을 넘어 도시의 문화적 중심으로 다시 자리매김했다.
프로젝트는 건물을 복원하는 데 그치지 않고, 공공 예술 공간과 녹지, 그리고 블타바강 수변과의 연결성을 강화하여 도시의 흐름 속으로 건축을 다시 열었다. ‘페어몬트 골든 프라하(Fairmont Golden Prague)’로 새롭게 태어난 이 건물은 역사와 예술, 지속 가능성이 공존하는 공공 건축의 비전을 제시하며, 프라하 도심 속 새로운 문화적 이정표가 되었다.






















































건축가 타크 아키텍츠 (TaK Architects)
위치 체코, 프라하, 파리즈카 거리 43, 드보르자코보 나브제지, 나메스티 쿠리오베흐
용도 호텔
건축면적 2,525㎡
연면적 38,189㎡
준공 2025
시공 Metrostav
발주자 Three independent Czech investors – Pavel Baudiš, Eduard Kučera and Oldřich Šlemr
사진작가 BoysPlayNice
'Architecture Project > Hospitality' 카테고리의 다른 글
| 숲 속에 세워진 단단한 쉼의 구조, 모놀리스 로지 / 헬로우드 (0) | 2026.01.19 |
|---|---|
| 번개 이후의 재건, 지역을 다시 묶는 목구조 온천 / 야노 아오야마 아키텍처 디자인 (0) | 2025.12.18 |
| 결합의 공간, 반지를 닮은 웨딩 베뉴/ 에이에스더블유에이 (0) | 2025.10.30 |
| 토착 재료와 현대적 감각이 만난 고지대 쉼터 / 피티에이에이 (0) | 2025.09.29 |
| 태국의 빛과 패턴으로 물든 시암 스퀘어의 호텔 / 에이에스더블유에이 (0) | 2025.09.26 |
마실와이드 | 등록번호 : 서울, 아03630 | 등록일자 : 2015년 03월 11일 | 마실와이드 | 발행ㆍ편집인 : 김명규 | 청소년보호책임자 : 최지희 | 발행소 : 서울시 마포구 월드컵로8길 45-8 1층 | 발행일자 : 매일



