
쪾진양호공원 산자락에 자리한 조정훈련장은 서쪽으로 진양호, 동쪽으로 진주시를 바라봅니다. 이곳은 오랜 시간 진주시민들의 추억이 쌓여온 관광 명소로, 저희가 제안하는 시민과 선수들을 위한 새로운 조정훈련장은 동화 속 푸른 숲속 요새처럼 신비롭게 자리합니다. 호수와 하늘의 빛을 담은 푸른색 타일로 마감된 외관은 시간과 계절 에 따라 다양한 빛을 반사하며, 숲의 풍경과 자연스럽게 어우러집니다.
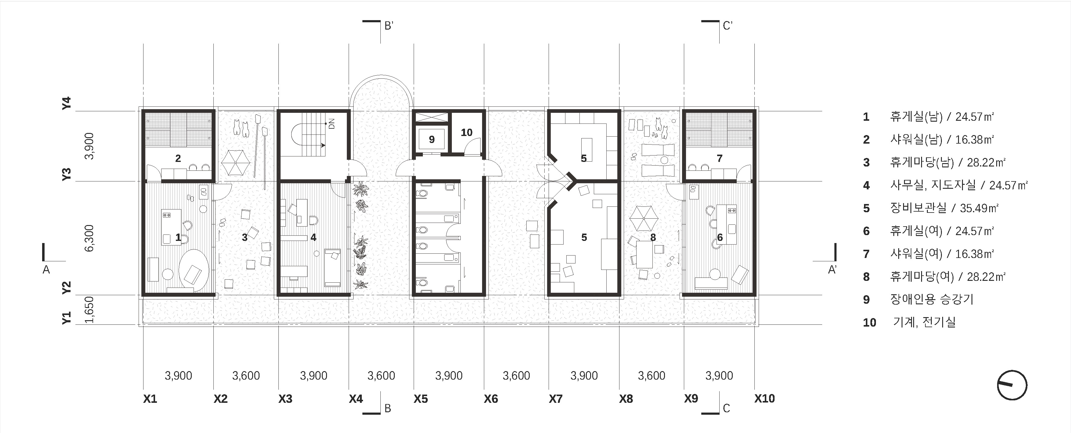
쪾1층은 시민과 선수 모두를 위한 훈련 및 체험 공간으로, 가변형 벽체를 활용하여 기능과 프로그램에 따라 자유롭고 유연하게 공간을 구획할 수 있습니다. 또한 서측 외벽을 따라 외부공간과 직간접적으로 연결되어 프라이버시를 보호하면서도 야외 활동과 연계해 다양하게 활용할 수 있습니다.
2층은 선수들을 위한 사무실과 휴게공간으로 구성되며, 독립적으로 배치된 휴게실은 선수들에게 조용하고 안락한 휴식처를 제공합니다. 진주시와 진양호를 조망하는 휴게마당은 수중 활동이 많은 선수들의 장비 관리와 세탁 등 특화된 외부 활용도를 반영해 효율적인 동시에, 다채로운 풍경을 내부로 끌어들입니다.
쪾제안하는 조정훈련장은 단순명료한 모듈형 구조를 통해 경제적이면서 효율적인 공간을 실현합니다. 1층은 철근콘크리트구조에 비내력벽을 두어 향후 공간 변화에도 유연하게 대응하며, 2층은 철골 박공지붕으로 계획되어 기능적이고 경제적일 뿐 아니라 진양호공원의 상징적인 풍경으로 시민들과 소통합니다. 또한 명료한 평면계획을 바탕으로 동선의 원활한 분리와 운영의 편의성을 동시에 확보합니다. 모든 공간은 무장애 설계로 계획되어 누구나 편안하게 이용할 수 있습니다.













건축사사무소 미션오브젝트
2등작_ 건축사사무소 미션오브젝트(mission-object.com)
대표건축가 고재협, 오나예
대지면적 1,181,115㎡
연면적 579.44㎡
건축면적 406.82㎡
건폐율 0.03%
용적률 0.05%
최고높이 10.2m
층수 지상 2층
구조 지상1층:철근콘크리트구조 / 지상2층:철골구조
대표건축가 고재협, 오나예
디자인팀 고재협, 오나예, 김민석
조경면적 26.17㎡
주차대수 20대
발주처 진주시
'Plans' 카테고리의 다른 글
| 익산시 다이로운-모아복합센터 건립사업_ 3등작 / 레이어스건축사사무소 (0) | 2025.11.21 |
|---|---|
| 우신고등학교 강당 겸 체육관 증축사업_ 5등작 / 사이공간건축사사무소 (0) | 2025.11.17 |
| 김제 힐스타운 시암 커뮤니티센터 조성사업 건축설계 제안공모_ 2등작 / 포치건축사사무소 (0) | 2025.11.14 |
| 사천시 공공산후조리원 건립사업 설계공모_ 2등작 / 아우트 건축사사무소 (0) | 2025.11.14 |
| 근화초 교실 증축공사 설계용역 제안공모_ 2등작 / 디디유건축사사무소 (0) | 2025.11.12 |
마실와이드 | 등록번호 : 서울, 아03630 | 등록일자 : 2015년 03월 11일 | 마실와이드 | 발행ㆍ편집인 : 김명규 | 청소년보호책임자 : 최지희 | 발행소 : 서울시 마포구 월드컵로8길 45-8 1층 | 발행일자 : 매일



