
INTERSTICE
“사이공간, 경계를 허무는 무대”
■ 자연과 도시의 사이
내포-서산 공연예술지원센터 대상지는 목적을 가지고 찾아오는 외곽의 터이다. 그 고요함은 오히려 예술의 진정성을 마주하는 조건이 되며, 한때 배움의 울림이 가득했던 교정은 시간이 멈춘 듯 고즈넉히 남아, 오늘날 새로운 배움(문화와 예술의 학습)을 맞이할 준비를 한다. 이곳은 단순히 신축 건물과 존치되는 기존 건축물을 병치하는 것이 아니다. 과거의 학교와 미래의 예술이 하나의 문화 풍경으로 겹쳐지는 무대이며, 구관과 신관, 실내와 실외, 대중과 예술인, 일상과 예술 사이의 경계는 흐려지고, 중정이자 아케이드로 확장된 매개공간은 이 모든 층위를 잇고, 과거 교육의 장은 오늘날 대중문화예술을 배우고 나누는 장으로 치환된다. 여기서 ‘경계 없는 무대’는 시간과 개념의 간극까지 매개하는 첫 장면이 된다.
■ INTERSTICE – 신관과 구관의 사이, 사이공간의 조직
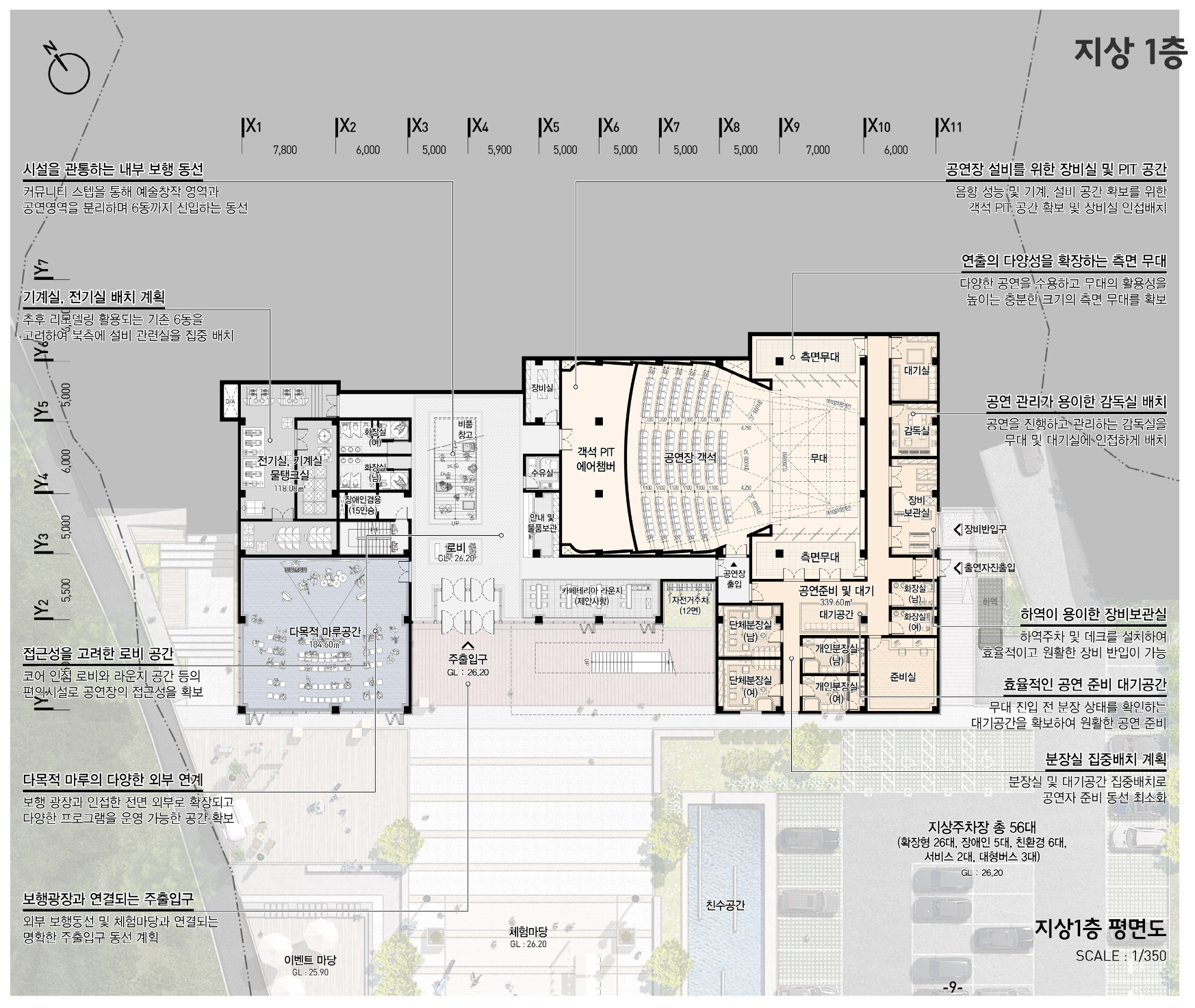
센터의 공간구성 로직은 단순한 연결로나 통로가 아닌 구관과 신관 사이의 공용공간, 내부와 외부 사이의 오픈스페이스를 하나의 유기적인 조직체로 인식하는 것에서 부터 시작된다.즉, 사이공간을 활용해 서로 다른 기능과 시간이 유기적인 관계망을 형성하도록 계획한다.
- 대중과 예술인의 사이 : 공연장은 전문적 활동의 중심이지만, 동시에 중정과 맞물려 일상적 문화 활동이 스며든다.
- 구관(과거)과 신관(미래)의 사이 : 기존 건축물은 전시·카페·체험·휴게공간으로 재생되고, 신축 공연동과의 사이에 형성된 공용공간이 두 영역을 하나로 직조한다.
- 자연과 도시의 사이 : 당산산성과 배후 산세는 조경과 아케이드에 스며들며, 풍경은 공연과 전시의 장면과 겹쳐진다. 이 “사이공간(Interstice)”은 단순한 여백이 아니라, 프로그램과 프로그램, 과거와 미래, 시민과 예술인이 유기적으로 얽히며 그 속에서 간극과 경계가 자연스럽게 중첩되고, 중정을 중심으로 다양한 공간들이 확장·변이되어 새로운 경험을 만들어내는 장치가 된다. 즉, 사이공간은 벽이나 통로가 아닌, 관계가 겹치며 새로운 공간적 장면이 만들어지는 실질적 무대로 작동한다.
■ 문화와 일상의 사이
마지막 장면에서 드러나는 것은 건축의 외형이 아니라, 공간 안에서 발생하는 관계와 경험이다. 중정을 중심으로 이어진 다양한 동선과 프로그램의 간극은 단순한 여백이 아니라, 사람과 활동을 매개하는 적극적 공간으로 작동한다. 여기서 공연은 무대 위에 국한되지 않고, 시민의 일상 속으로 스며드는 경험이 되며, 휴식은 단순한 쉼터가 아니라, 문화와 교류가 축적되는 장면이 된다. 결국 내포-서산 공연예술지원센터는 “사이에서 관계를 낳는 건축, INTERSTICE”로 기억되게 될 것이다.









(주)종합건축사사무소선기획
당선작_ (주)종합건축사사무소선기획(https://www.asun.co.kr/)
대표건축가 이용민
대지면적 12,077㎡
연면적 2,994.25㎡(기존 6동 946.32㎡ 포함)
건축면적 2,392.96㎡(기존 6동 976.32㎡ 포함)
최고높이 11.25m
층수 지상 2층
구조 철근콘크리트 라멘구조(철근콘크리트조/철골조)
주차대수 지상주차장 총 56대(일반형 14대, 확장형 26대, 장애인주차 5대, 친환경 6대, 서비스 2대, 대형버스 3대), 자전거주차 12면
'Plans' 카테고리의 다른 글
| 진동보훈문화관 건립사업 설계공모_ 2등작 / 그랑건축사사무소 (0) | 2025.12.08 |
|---|---|
| 지역맞춤형 수산종자 실용화센터 건립사업 건축 설계공모_ 2등작 / 건축사사무소 하루 (0) | 2025.12.08 |
| 청소년 복합놀이 문화공간 조성 사업 설계공모_ 당선작 / 건축사사무소 고광 (0) | 2025.12.03 |
| 진밭골 목재친화도시 목재커뮤니티센터 건립공사 국제지명 설계공모_ 참가작 / Terroir + 내러티브 아키텍츠 (0) | 2025.12.03 |
| 조정훈련장 조성사업 기본 및 실시설계공모(일반설계공모)_ 3등작 / 안들 건축사사무소 (0) | 2025.12.01 |
마실와이드 | 등록번호 : 서울, 아03630 | 등록일자 : 2015년 03월 11일 | 마실와이드 | 발행ㆍ편집인 : 김명규 | 청소년보호책임자 : 최지희 | 발행소 : 서울시 마포구 월드컵로8길 45-8 1층 | 발행일자 : 매일



