
화원조선 청년문화센터
청년과 미래, 휴식과 문화가 교차하는 공간
끊임없는 쇳소리와 바닷바람이 교차하는 산업의 대지 위, 화원조선 청년문화센터는 가볍게 떠올라 노동의 하루 속 잠시 머무를 수 있는 그늘이 된다. 콘크리트와 밝은 벽돌로 이루어진 매스는 빛을 반사하며, 정면으로 받기보다 스스로 그늘을 만든다. 중정을 품은 내부는 간접 채광을 통해 시원한 동굴 같은 공간감을 형성한다. 각 층은 기능적으로 분절되지만, 중정과 쉼터가 그 사이의 흐름을 부드럽게 잇는다. 이곳에서 사람들은 산업의 열기 속에서도 잠시 숨을 고르고, 서로의 존재를 느낀다. 화원조선 청년문화센터는 조선의 수평선 위로 떠오른 하나의 그늘이자, 청년과 지역을 잇는 산업 속 문화의 쉼터이다.
조선 산업의 거친 대지 위, 화원조선 청년문화센터는 노동의 시간과 휴식의 시간이 교차하는 경계 위에 서 있다. 밝은 벽돌과 콘크리트로 이루어진 매스는 산업의 무게를 품되, 그 속에서 부드러운 그늘을 만들어 산업의 풍경 속에 온도의 균형을 더한다. 중정을 통한 간접 채광은 거친 현장 속에서도 빛과 바람의 여유를 느끼게 하며, 청년 근로자와 지역이 함께 숨 쉴 수 있는 공간을 만든다. 이곳은 단순한 문화시설이 아닌, 청년의 삶과 지역의 시간이 맞닿는 사회적 쉼표이며, 산업의 풍경 속에서 사람과 공간, 오늘과 내일이 조용히 대화하는 청년의 시대를 위한 그늘의 건축이다.
배치계획
전면 약 9m 도로를 따라 진입하면, 차량과 보행자의 동선이 명확히 분리된 배치를 마주하게 된다. 차량은 대지의 장변을 따라 주차장으로 자연스럽게 유도되며, 좌측에서 진입하는 보행자는 외부 계단을 통해 곧바로 2층으로 연결되는 독립된 접근 동선을 가진다. 차장을 지나면 식당과 맞닿은 남향의 안뜰마당이 펼쳐지며, 중앙 식재와 그늘진 앉음터를 통해 식당 대기와 휴식이 공존하는 전환 공간을 형성한다. 부출입구 또한 가벽과 쉼터를 두어 자연스럽게 머무를 수 있는 그늘 공간을 제공한다. 건물은 대지 우측에 배치되며, 주출입구는 필로티를 통해 그늘과 여유를 확보한 진입 경험을 만든다. 전체 배치는 산업단지의 흐름 속에서 청년 근로자의 휴식과 문화 활동이 자연스럽게 이어지는 열린 장소성을 구현한다.
평면계획
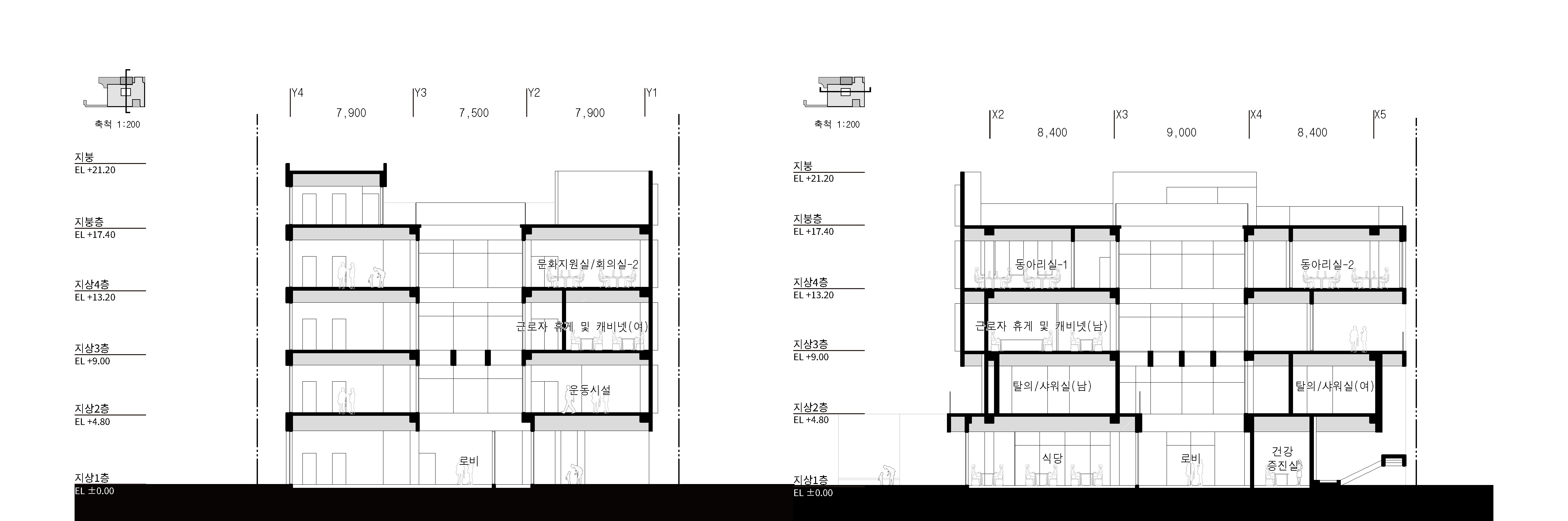
전면 도로에서 들어온 보행자는 남향 안뜰마당 혹은 주출입구의 필로티 공간에 도달하며, 이 공간은 식당 대기와 휴식을 동시에 수용하는 완충 영역이 된다. 2층은 부출입구와 연결되며 근로자가 자주 이용하는 탈의·샤워실과 운동 시설을 배치해 효율적인 동선을 구성했다. 3층에는 차분한 근로자 휴게 공간이 중정을 따라 펼쳐져 자연광을 은은하게 끌어들이며 안정된 휴식을 제공한다. 4층은 동아리실과 문화지원·회의실을 두어 소규모 모임이 이루어지는 문화적 플랫폼을 마련했다. 전 층을 관통하는 중정과 외부 데크는 실내외 경계를 유연하게 확장하여 사용자의 이동과 머무름이 자연스럽게 순환하는 구조를 완성한다.












(주)스튜디오 로사이 건축사사무소
2등작_(주)스튜디오 로사이 건축사사무소(https://www.studio-1001.com/)
대표건축가 김강희
대지면적 1,344.00㎡
연면적 2,015.52㎡
건축면적 786.27㎡
건폐율 58.50%
용적률 149.96%
최고높이 21.20m
층수 지상 4층
구조 철근콘크리트구조
대표건축가 김강희
디자인팀 황승환
발주처 전라남도 해남군
'Plans' 카테고리의 다른 글
| 38평화공원 내 다목적쉼터 조성사업 설계공모_ 2등작 / (주)아인디자인 건축사사무소 (0) | 2026.01.09 |
|---|---|
| 목리지구 뉴빌리지 주민공동이용시설 조성사업_ 기타작 / 내러티브아키텍츠 건축사사무소 (0) | 2026.01.07 |
| 의정부 행복로골목형상점가 특화가로 조성 사업_ 당선작 / 상하건축사사무소 (0) | 2026.01.07 |
| 전남K-푸드교육센터 신축공사 설계용역_ 당선작 / (주)제이티엠종합건축사사무소 (0) | 2026.01.06 |
| 무안군 신청사 건립공사 건축 설계공모_ 3등작 / (주)조우아건축사사무소 (0) | 2025.12.30 |
마실와이드 | 등록번호 : 서울, 아03630 | 등록일자 : 2015년 03월 11일 | 마실와이드 | 발행ㆍ편집인 : 김명규 | 청소년보호책임자 : 최지희 | 발행소 : 서울시 마포구 월드컵로8길 45-8 1층 | 발행일자 : 매일



