
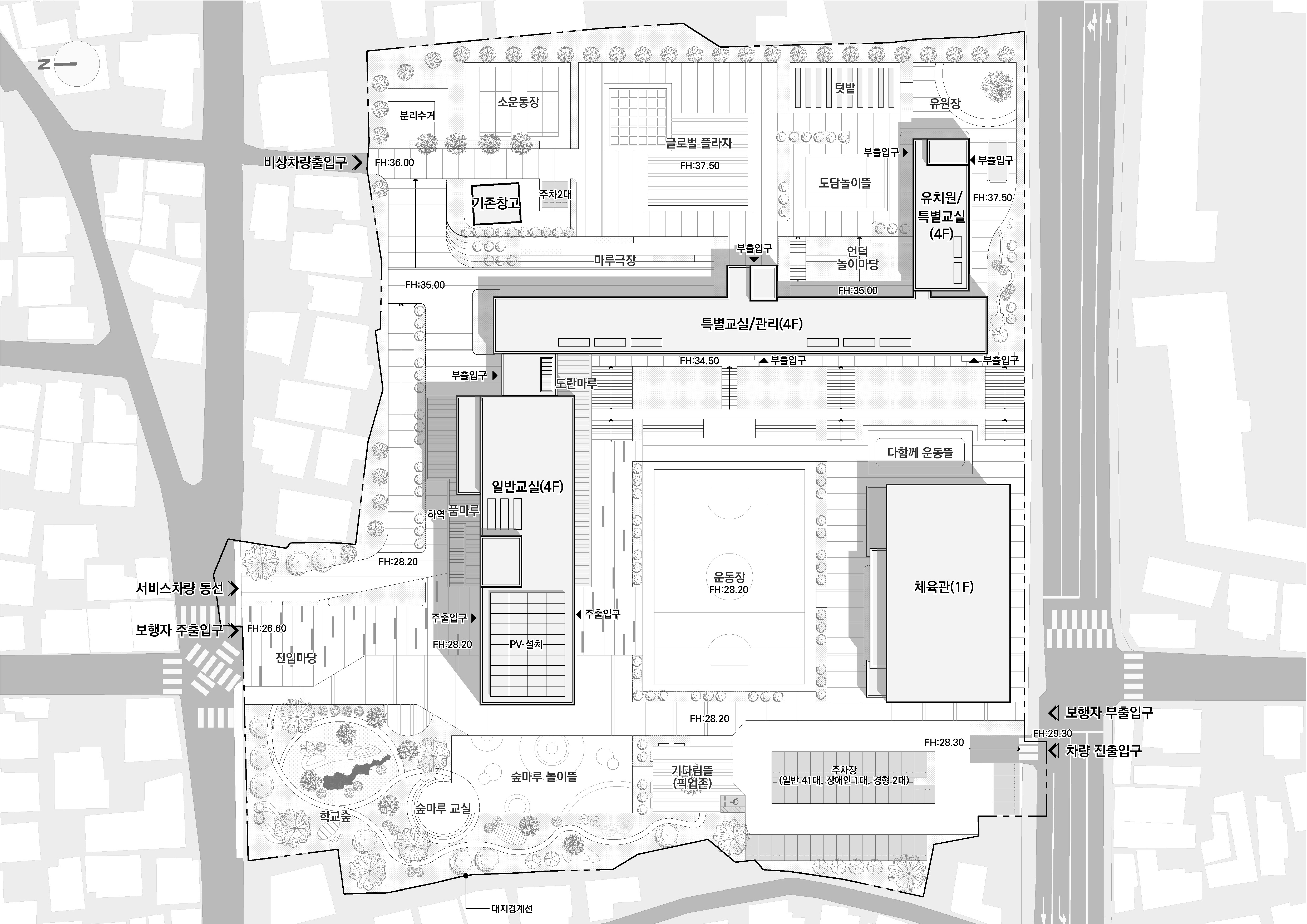
송신초등학교 공간재구조화 계획은 다문화·외국인가정 비율이 높은 지역적 특성을 바탕으로, 서로 다른 배경을 가진 아이들이 일상 속에서 자연스럽게 만나고 교류하며 성장할 수 있는 학교 환경을 제안한다. 운동장과 교사동 사이의 레벨 차, 분절된 기존 동선 구조를 재해석하여 개축동과 리모델링동을 잇는 실내광장을 중심 공간으로 구성하고, 학교 전체의 흐름을 하나의 일상적인 ‘만남의 장’으로 재구성하고자 했다.
실내광장은 송신초의 다문화 국제혁신학교 정체성을 가장 직접적으로 담아내는 공간으로, 1층에는 식당과 실내놀이터를 배치해 학교의 생활 중심이자 지역과 소통하는 열린 공간으로 계획하였다. 식당은 급식 기능을 넘어 다문화 행사, 포틀럭, 소규모 공연과 전시 등 다양한 활동을 수용할 수 있는 다목적 공간으로 구성하였다. 실내놀이터는 등·하교 시 자연스러운 만남과 놀이, 기다림이 이루어지는 일상 공간인 동시에, 학교숲과 연계된 독립적인 공간 구성으로 소규모 행사, 체험 프로그램, 커뮤니티 활동 등 다양한 행사를 수용할 수 있는 유연한 공간으로 계획하였다. 두 공간은 실내광장을 매개로 시각적·공간적으로 연결되어, 학생들의 일상 속 교류와 공동체 경험을 자연스럽게 확장한다.
실내광장과 연계된 2층에는 도서관을 중심으로, 도서관 속 국어교실을 계획하여 다문화·다언어 환경에 대응하는 언어·문화 학습의 중심 공간으로 구성하였다. 이 공간은 읽기·쓰기 수업을 넘어 문화 이해, 토론, 프로젝트 활동이 도서관 공간과 자연스럽게 연계되어 이루어질 수 있도록 계획되었으며, 인접한 특별교실은 도서관과 직접 연계되어 언어·문화 수업이 확장되는 협력 학습 공간으로 활용 가능하도록 하였다. 또한 가변형 벽체를 적용한 공용교실과 일반교실을 배치하여 미래 교육에 대응하는 유연한 수업 운영이 가능하도록 하였으며, 일부 층에 계획된 야외 데크와의 연계를 통해 학습과 휴식이 자연스럽게 이어지는 교육 환경을 조성하였다.
외부공간은 기존 지형과 식생을 존중하며 단계적으로 구성해, 학교숲과 다목적 마당, 야외교실 등 다양한 활동이 가능한 공간으로 확장하였다. 특히 지역에 부족한 녹지와 문화 공간을 학교 안으로 끌어들여, 송신초등학교가 아이들만의 학교를 넘어 지역과 함께 성장하는 생활 속 교육·문화 거점으로 자리 잡을 수 있도록 계획하였다.









(주)슬로프트건축사사무소
당선작_(주)슬로프트건축사사무소(https://sloftarchitects.com/)
대표건축가 신명숙, 정동일
대지면적 21,438.00㎡
연면적 8,451.30㎡
건축면적 3,155.29㎡
건폐율 14.72%
용적률 39.42%
층수 지상 5층
구조 철근콘크리트 구조
대표건축가 신명숙, 정동일
디자인팀 신명숙, 정동일, 진달래, 이아영, 이주현, 손자연
발주처 경기도평택교육지원청
'Plans' 카테고리의 다른 글
| 서산 보원사지 방문자센터 건립사업 건축설계(기본 및 실시설계) 용역_당선작 / (주)한창 건축사사무소 (0) | 2026.01.15 |
|---|---|
| 유네스코 세계유산 국제해석설명센터 건립공사 설계공모_ 2등작 / 풀이건축사사무소+스튜디오만물상 (0) | 2026.01.12 |
| 거제우체국 건립공사 설계용역_ 당선작 / (주)건축사사무소 티오피 (0) | 2026.01.09 |
| 울진 청년창업복합문화센터 건립사업 건축설계 공모_ 3등작 / (주)인에이건축사사무소 (0) | 2026.01.09 |
| 38평화공원 내 다목적쉼터 조성사업 설계공모_ 2등작 / (주)아인디자인 건축사사무소 (0) | 2026.01.09 |
마실와이드 | 등록번호 : 서울, 아03630 | 등록일자 : 2015년 03월 11일 | 마실와이드 | 발행ㆍ편집인 : 김명규 | 청소년보호책임자 : 최지희 | 발행소 : 서울시 마포구 월드컵로8길 45-8 1층 | 발행일자 : 매일



