
Lebenski
슬로바키아 타트라 산맥 기슭, 숲과 맞닿은 경계에 자리한 이 프로젝트는 산악 건축의 전통을 오늘의 주거 유형으로 다시 읽은 프로젝트이다. 고지대 숲 뒤로 펼쳐지는 하이 타트라의 능선을 배경으로, 이 건물은 주변 풍경을 압도하기보다 차분한 태도로 자리를 잡는다. 건축가는 형식의 단순성과 순수함을 통해, 멀리서도 인식되지만 과시하지 않는 존재감을 목표로 했다.
Lebenski라는 이름은 1960년대 초반에 지어진 요양 시설 ‘노비 지보트(Nový život, 새로운 삶)’에서 비롯된다. 1990년대 이후 건축적·기능적 가치를 상실했던 이 건물은 2023년 본격적인 재생을 시작했고, 아트리움 아르키텍티(Atrium Architekti)가 설계를 맡아 아파트형 주거 건물로 탈바꿈했다. 이 프로젝트는 이전에 같은 스튜디오가 진행했던 돌니 쿠빈(Dolný Kubín)의 작업에 이어, 산악 지역 건축에 대한 또 하나의 해석으로 이어진다.
리노베이션의 전제는 명확했다. 타트라 국립공원(TANAP)과 비소케 타트리 시의 엄격한 규제, 그리고 모든 공간을 최대한 활용하고자 한 발주자의 요구가 동시에 작용했다. 설계는 기존 건물의 높이와 윤곽, 건축 면적을 유지한 채, 다락과 지하를 주거 공간으로 전환해 수용 규모를 확장하는 방식으로 진행되었다. 이는 산악 호텔 건축에서 영감을 받은 절제된 우아함을 회복하려는 시도이기도 했다.
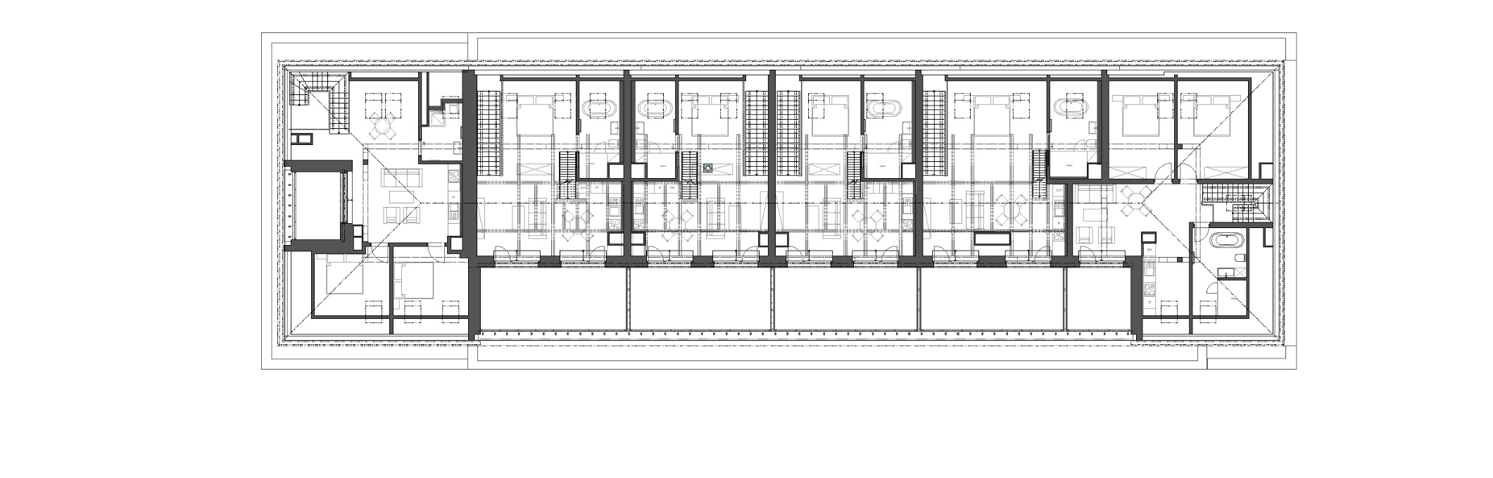
기존 3층 규모의 철근콘크리트 구조는 리노베이션 과정에서 구조체만 남긴 채 정비되었고, 특히 다락과 지하부는 구조적으로 다시 설계되었다. 가장 큰 도전은 지하 공간을 주거로 전환하는 일이었다. 새롭게 계획된 테라스 하부까지 주거 공간이 확장되면서, 기존에 지면에 놓여 있던 테라스는 측면으로 확장되고 새로운 기초 구조가 추가되었다. 이 지하부의 세대들은 층고를 확보하기 위해 복층 구조로 계획되었다.
건축적 표현에서도 변화가 이루어졌다. 기존의 박공지붕은 전통적인 산악 건축에서 자주 등장하는 우진각 지붕으로 대체되었고, 이 지붕 아래에는 거실 갤러리와 남향으로 열린 테라스를 갖춘 메조네트 세대가 들어섰다. 건물 외곽을 따라 발코니와 로지아가 배치되었으며, 창호 면적의 확장은 타트라 산맥을 향한 시야를 실내 깊숙이 끌어들인다.
재료 선택 역시 기존 건물의 성격을 존중하는 방향으로 이루어졌다. 3층과 다락에는 징크-티타늄 패널이 적용되었고, 1·2층은 미장 마감으로 처리되었다. 특히 약 40cm 두께의 대형 화강석으로 이루어진 기존 기단부는 해체 후 재시공하는 방식을 택했는데, 이는 비용과 공정 측면에서 부담이 컸음에도 불구하고 건물의 원형을 보존하기 위한 결정이었다.
실내는 소형 유닛부터 갤러리를 갖춘 복층 세대까지 다양한 주거 유형으로 구성되었다. 건축가는 기본적인 평면 구성과 층고, 중립적인 색채와 밝은 바닥, 목재를 결합한 재료 팔레트를 제안했고, 개별 세대의 구체적인 인테리어는 거주자의 선택에 맡겼다. 이는 집합주거이면서도 각자의 생활 방식을 존중하려는 태도로 읽힌다.
교통 환경 역시 이 주거의 장점 중 하나이다. 건물에서 100m 이내에는 타트라 전기철도(TEŽ)가 지나며, 주변 리조트와 포프라트(Poprad)를 잇는 이동이 용이하다. 건물 하부로는 ‘자유의 길(Cesta slobody)’이라 불리는 보행로가 이어져, 타트란스카 롬니차에서 타트란스카 폴리안카까지 산악 풍경을 따라 걷는 경험을 제공한다.
Lebenski는 낡은 산악 호텔을 단순히 현대화하는 데 그치지 않는다. 이 프로젝트는 장소의 기억과 규제를 존중하면서도, 오늘날의 주거 방식에 맞는 공간으로 재구성한 사례이다. 산악 건축의 전통적 성격을 이어받아, 조용하지만 분명한 태도로 새로운 삶의 무대를 만들어낸다.








































건축가 아트리움 아르키텍티 (Atrium Architekti)
위치 슬로바키아, 하이 타트라, 스타리 스모코베츠
용도 공동주택
대지면적 3,950 m²
건축면적 1,076 m²
연면적 4,600 m²
준공 2024
대표건축가 Michal Burák
디자인팀 Dušan Burák, Jana Varchola Buráková, Matúš Gomolčák, Anton Lukáč, Martina Schmidt, Marek Dubiel
발주자 B.L.
사진작가 Matej Hakár
'Interior Project > Residential' 카테고리의 다른 글
| 곡선으로 이어진 가족의 일상, dP 아파트먼트 하우스 / 트리탄&준 (0) | 2026.01.26 |
|---|---|
| 1930년대 빌라의 재생, 프라하 주거의 새로운 층위 / 아틀리에 하이니 (0) | 2026.01.16 |
| 전통 구조를 드러내고 현대 기술을 숨긴 주택 리모델링 / 오오오오엑스 (0) | 2026.01.09 |
| 기능 셀에서 연속 공간으로: 내부 구조를 전환한 주택 리모델링 / 툽 스튜디오 (0) | 2025.12.15 |
| 색채와 수직적 개방으로 일상의 밀도를 바꾼 셀랑고르 주택 / 우우 스튜디오 (0) | 2025.12.12 |
마실와이드 | 등록번호 : 서울, 아03630 | 등록일자 : 2015년 03월 11일 | 마실와이드 | 발행ㆍ편집인 : 김명규 | 청소년보호책임자 : 최지희 | 발행소 : 서울시 마포구 월드컵로8길 45-8 1층 | 발행일자 : 매일



