
House Within a House
스페인 부르고스 주 사사몬의 역사 지구에 위치한 House Within a House는 과거 돼지우리였던 소규모 농가 건물을 단독주택으로 전환한 프로젝트이다. 설계의 출발점은 명확했다. 건물이 지닌 농촌적 정체성과 역사적 맥락을 보존하면서도, 오늘날의 생활 방식에 맞는 따뜻하고 유연한 주거 공간을 만드는 것이었다.
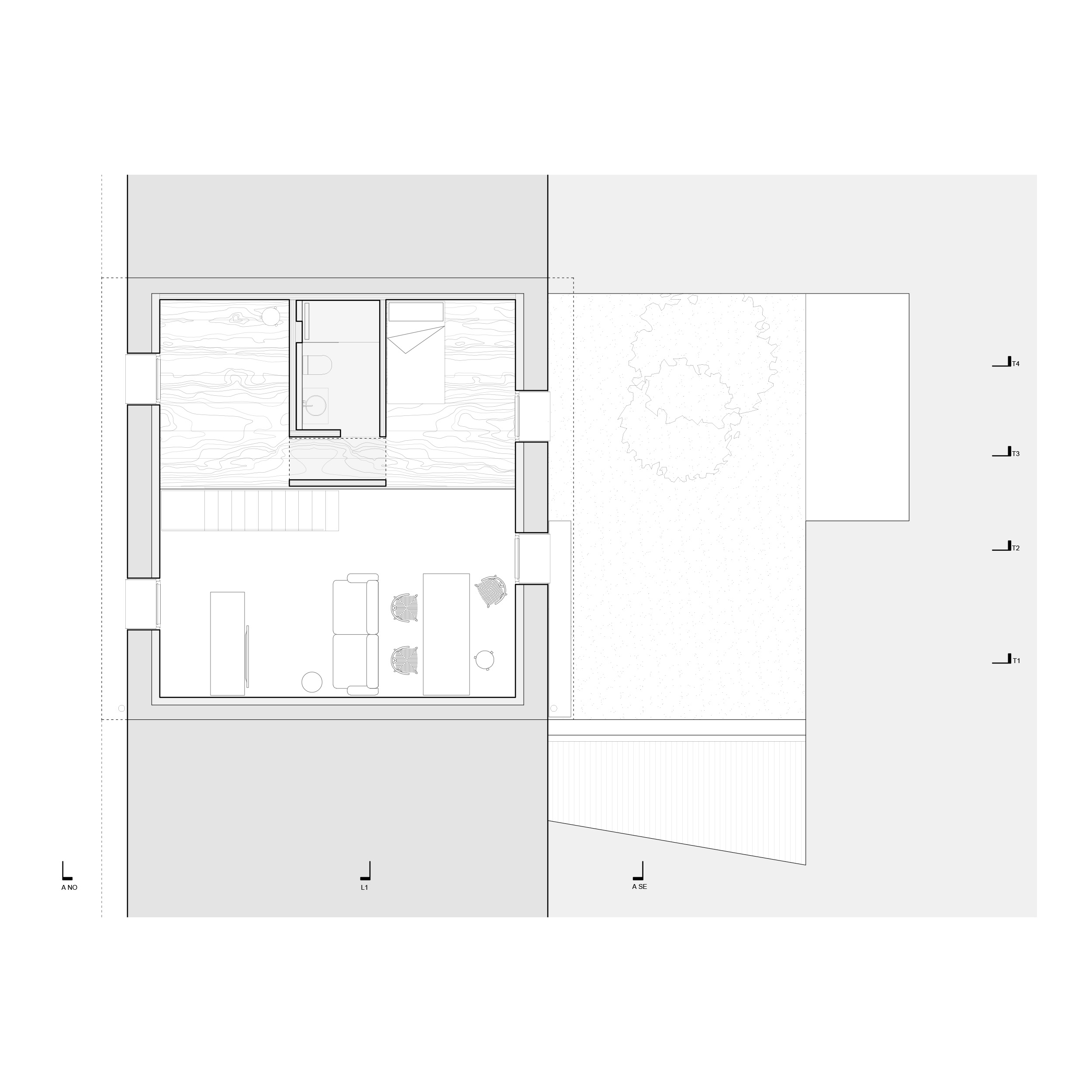
마데베 아르키텍토스(MADE.V arquitectos)는 외관을 유지한 채 내부에만 개입하는 전략을 택했다. 기존 파사드는 역사적 환경에 걸맞게 절제된 방식으로 복원되었고, 내부는 완전히 비워졌다. 어도비(adobe)로 이루어진 외곽 벽체는 과거의 흔적으로 남겨두고, 그 안에 새로운 구조를 삽입하는 방식이다. 이 프로젝트의 핵심은 기존 외피 안에 또 하나의 집을 짓는 개념이다.
내부에는 적층 목재로 제작된 ‘박스’ 구조가 삽입되었다. 이 목재 구조는 전체 부피의 약 절반을 차지하며, 기존 벽체에 부분적으로 기대어 서 있다. 거칠고 무거운 어도비 벽과 따뜻하고 가벼운 목재 구조 사이의 대비는 공간에 긴장과 깊이를 부여한다. 박스와 외피 사이에는 여백이 생기고, 이 틈이 새로운 공간 관계를 만들어낸다.
공간은 동일한 목재로 제작된 대형 슬라이딩 도어와 여닫이문을 통해 구성된다. 이는 시각적 개방과 기능적 유연성을 동시에 확보하는 장치이다. 방은 고정된 구조라기보다 필요에 따라 확장되거나 구획될 수 있는 유동적 공간으로 작동한다.
기술적으로도 에너지 효율은 중요한 요소였다. 내부 외피에는 연속적인 단열층이 적용되었고, 경량 파티션을 통해 외부와 동일한 마감 모르타르를 사용함으로써 재료의 일관성을 유지했다. 지붕은 기존의 보-서까래 체계를 유지하되, 적층 목재로 재구성해 구조적 안정성을 확보했다.
목재 박스는 지역 업체에서 모듈화 제작되어 현장에서 조립되었다. 이는 지역 장인 기술과의 연결을 강화하는 동시에 운송 부담을 줄이는 방식이었다. 마감은 최소한의 재료로 구성된다. 노출 목구조, 연속 모르타르 마감, 바닥 난방 슬래브 위에 직접 타설된 투명 에폭시 레진 바닥이 사용되었다. 재료의 솔직함이 이 프로젝트의 정체성을 형성한다.
House Within a House는 과거를 숨기지 않는다. 오히려 기존 건물의 기억을 드러내고, 그 안에 새로운 삶의 구조를 삽입한다. 돼지우리가 지닌 농촌적 흔적은 사라지지 않고, 현대적 주거로 재해석된다. 이 집은 전통적 농가 건축을 단순히 복원하는 대신, 내부에 또 하나의 집을 세움으로써 새로운 거주의 방식을 제안한다.













































건축가 마데베 아르키텍토스(MADE.V arquitectos)
위치 스페인 사사몬, 부르고스
용도 단독주택
대지면적 128㎡
건축면적 60㎡
연면적 102㎡
준공 2025
대표건축가 Álvaro Moral García, Daniel González García
프로젝트건축가 Ana Doyague González, María Esteban Carrasco
시공 Construcciones Escribano
구조엔지니어 Medgon
사진작가 Javier Bravo
'Architecture Project > Single Family' 카테고리의 다른 글
| 날개처럼 내려앉은 단층의 집, 카사 CR / 에스오 아르키텍투라 앤 디자인 (0) | 2026.02.26 |
|---|---|
| 풍경에 기생하듯 스며든 구조, 하우스 X / 보하우스 아르키텍투라 (0) | 2026.02.24 |
| 녹지와 함께 구성한 단층의 질서, 하우스 SM / 마리우 알베스 아르키테투라 (0) | 2026.02.23 |
| 기억 위에 다시 지은 오각형의 집, 카지냐 다 멜로에이라 / 리페 사라이바 아르키텍투스 (0) | 2026.02.23 |
| 일상의 흐름을 집의 중심에 두다, 폴란카 나드 오드로우 하우스 / 비들로 아르히테크티 (0) | 2026.02.05 |
마실와이드 | 등록번호 : 서울, 아03630 | 등록일자 : 2015년 03월 11일 | 마실와이드 | 발행ㆍ편집인 : 김명규 | 청소년보호책임자 : 최지희 | 발행소 : 서울시 마포구 월드컵로8길 45-8 1층 | 발행일자 : 매일



