
Strážné Cottage
체코 크르코노셰(Krkonoše) 산맥의 스트라즈네 마을 경사면 위에는 한때 목조 통나무 코티지가 서 있었다. 그러나 대량 휴양의 시대를 거치며 그 집은 무분별한 증축과 임시 보수, 인공 패널 마감 아래 본래의 모습을 잃었다. 남아 있던 구조 역시 기술적으로 보존 가치가 거의 없었다. 이에 설계를 맡은 미모사 아키텍츠(Mimosa Architects)는 물리적 보존이 아닌 ‘집의 정신’을 되찾는 방향을 택했다.
크르코노셰 지역 건축은 거대한 급경사 지붕으로 정의된다. 긴 겨울을 견디기 위한 구조이며, 낮은 통나무 매스 위에 비대칭 지붕이 얹히고, 건초 다락창과 판재 박공, 석재 기단, 전통적인 3분 구성 평면이 특징이다. 이번 프로젝트는 바로 그러한 유형의 집을 오늘의 맥락 안에서 다시 자리 잡게 하는 작업이었다.
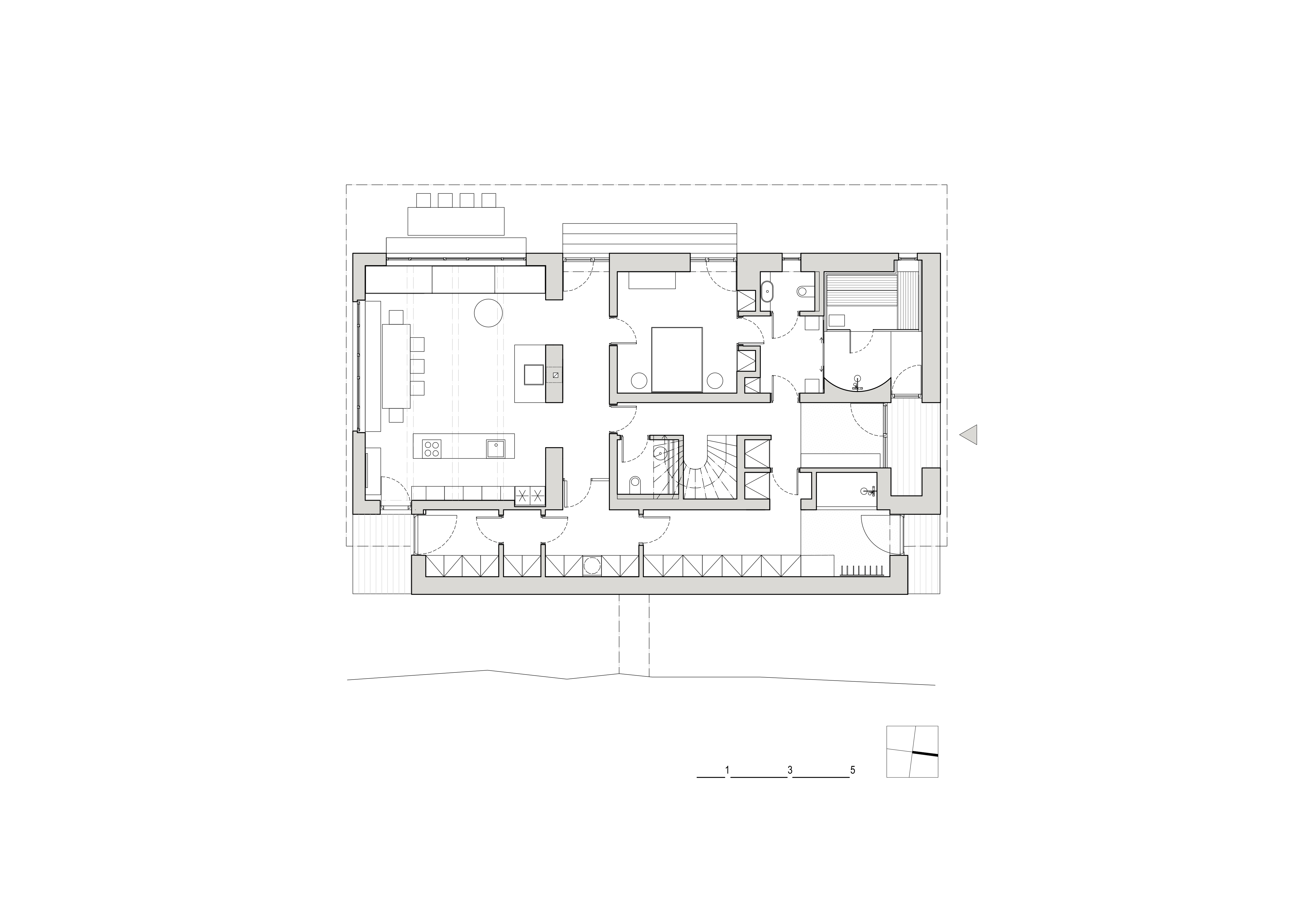
설계의 목표는 역사적 외피를 흉내 내는 복고적 재현이 아니었다. 전통적 공간 원리를 존중하되 현대적 공간 질서를 강요하지 않는 방식이었다. 중심이 되는 거실은 닫혀 있고 안전하며 친밀한 분위기를 유지한다. 공간의 높이와 비례는 남아 있던 노출 보 천장에서 출발했다. 이 보가 실내의 클리어 하이트와 전체 스케일을 결정했다. 개폐 가능한 창과 프레임리스 유리를 병행 적용해 전통 구조의 리듬은 유지하면서도 풍경을 향해 열린 내부를 구현했다.
지상층의 중심은 대형 테이블과 창가 붙박이 좌석이 놓인 거실이다. 기존 매스 안에는 게스트 침실과 계단이 삽입되었다. 사회주의 시기에 추가되었던 화장실은 사우나로 전환되었다. 경사면과 기존 매스 사이에는 수납 및 기술 공간을 삽입해 팬트리, 세탁실, 스키·자전거 장비 보관실, 작업실, 설비실, 반려견과 자전거를 위한 세척 공간을 마련했다.
다락은 전통적 로프트의 성격을 따르되, 가족 구성원 각자의 프라이버시를 보장한다. 박공 쪽 객실에서는 크르코노셰 능선을 조망할 수 있다.
설비 시스템 역시 절제된 태도를 유지했다. 과시적 자립 기술이 아니라, 기능적이고 간결하며 눈에 띄지 않는 운영을 지향했다. 주택은 전력망에 연결되어 있으며, 난방과 온수는 지열 히트펌프로 공급된다. 인근 샘물을 식수로 사용하고, 자체 하수 처리 시설을 갖추었다.
이 프로젝트는 전통을 복원하는 작업이 아니라, 전통적 공간 질서 위에 현재의 삶을 다시 구축한 사례이다. 과거의 형식을 차용하는 대신, 그 구조적 논리를 재해석했다는 점에서 더 설득력을 가진다.








































건축가 미모사 아키텍츠(Mimosa Architects)
위치 체코, 스트라즈네
용도 단독주택
건축면적 234㎡
연면적 306㎡
설계기간 2022
준공 2025
대표건축가 Jana Zoubková, Petr Moráček Pavel Matyska, Eliška Vinklárkov
사진작가 Petr Polák
'Architecture Project > Single Family' 카테고리의 다른 글
| 경사 위에 얹은 두 개의 수평선 / 엘투씨 아르키텍투라 (0) | 2026.03.16 |
|---|---|
| 시간과 풍경을 포획하는 삼각의 장치, 카사 코스모스 / 크리스티안 난세르 (0) | 2026.03.16 |
| 벽을 비우고 경계를 다시 세우다, HOUSE 1954 / 에페에메 아르키텍츠 (0) | 2026.03.13 |
| 담장을 집으로 바꾸다, 트빌리시의 인버티드 하우스 / 티아이엠엠 (0) | 2026.03.04 |
| 날개처럼 내려앉은 단층의 집, 카사 CR / 에스오 아르키텍투라 앤 디자인 (0) | 2026.02.26 |
마실와이드 | 등록번호 : 서울, 아03630 | 등록일자 : 2015년 03월 11일 | 마실와이드 | 발행ㆍ편집인 : 김명규 | 청소년보호책임자 : 최지희 | 발행소 : 서울시 마포구 월드컵로8길 45-8 1층 | 발행일자 : 매일



