
‘첫 대전시청사’ 건물은 대전의 100여년 역사가 담긴 건축물로 건립 당시부터 현재까지 도시의 흐름 속에서 핵심적인 역할을 해 왔으며, 앞으로 원도심에서 근대 건축문화유산의 중추 역할을 할 것으로 기대한다. 이에 따라 근대 건축문화유산으로서의 가치를 회복하여 지역 주민들이 대전의 역사와 의미를 되새길 수 있도록 건축물의 정체성을 재확립하고, 건축물의 내?외관과 공간 구조를 최대한 원형으로 복원 및 수리하여, 건축물의 기능뿐만 아니라 의미까지 되살려 내기 위한 효율적인 방안을 찾고자 한다.
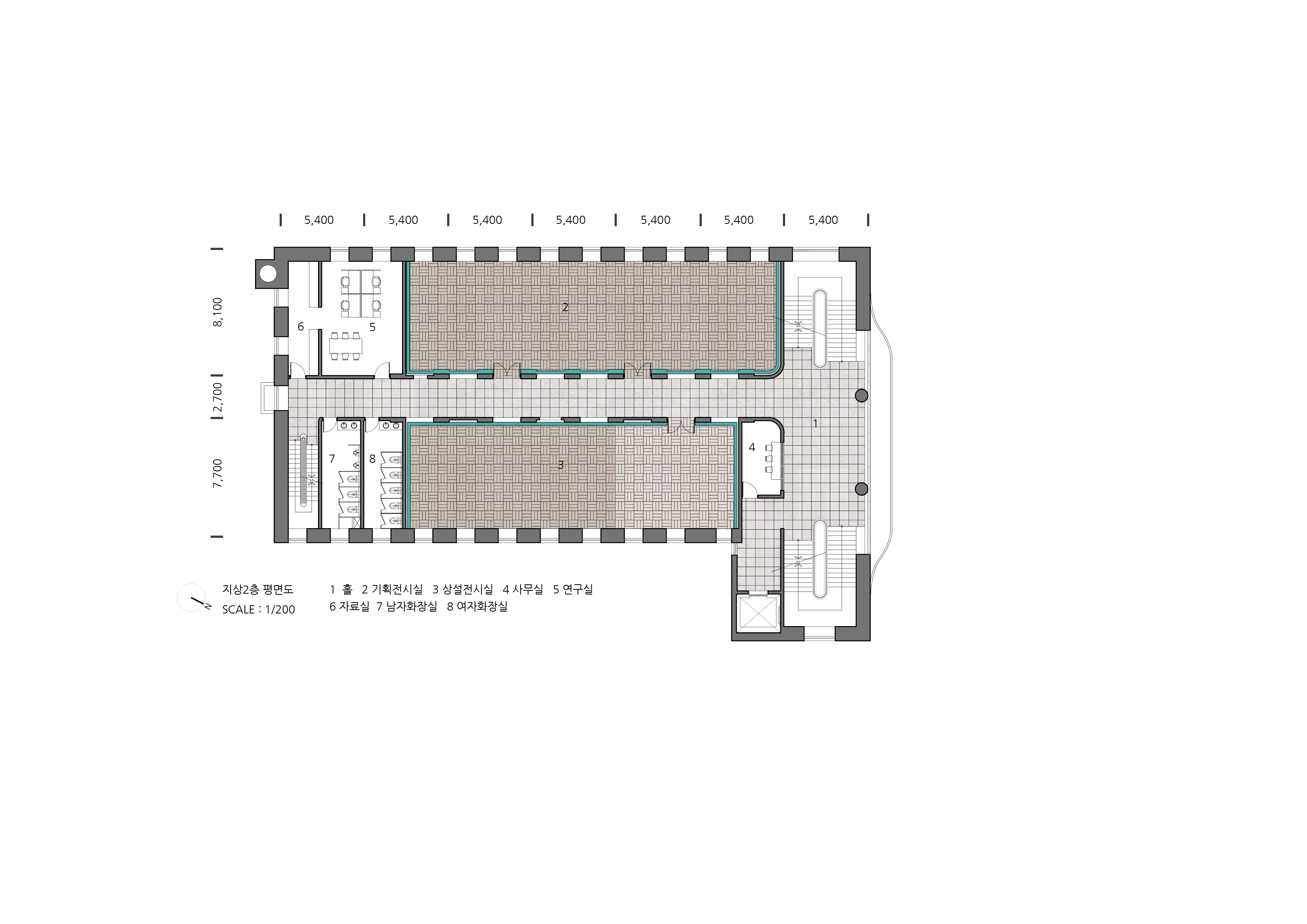
- 1937년 건축된 대전공회당은 현재 유일하게 보존된 공회당으로 그 역사적 상징성과 문화유산으로서의 가치가 높게 평가된다. 대전공회당의 주요 복원 대상을 공회당 건축의 프로그램적 특성과 그에 물리적 공간의 구성 2가지로 구분한다. 1) 공회당의 프로그램의 복원으로 대전시민들이 쉽게 접근하고 활용하는 공간이 되어야 한다. 이를 위한 프로그램의 구성으로 1층 웰컴카페와 참여형 프로그램, 2층 상설전시와 기획전시, 3층 공회당홀을 이용하여 북카페 형식의 다목적 공간을 제안한다. 2) 각 프로그램을 수용하는 공간 구성의 원칙은 1937년부터 유지 되어온 물리적 실체 중 가장 원형의 보존이 양호한 천장의 공간에 주목한다. 각층의 높이는 5.4m, 4.3m, 9m로 당시와 현재의 건축물에서도 흔히 볼 수 있는 공간이 아니다. 거기에 1,2층의 노출된 보와 몰딩으로 이루어진 천장, 3층의 격자그리드의 천장을 원형을 유지하며 현재의 필요요소(조명, 냉난방, 환기 등)의 개입을 최소한의 충돌로 완화하여 공존이 가능한 계획을 제안한다.
- 대전 공회당은 대전중앙로 네거리에 면하고 있지만 건축 당시와는 달리 지하상가 엘리베이터와 모퉁이 양측에 지하철 출입구가 생겨 전면의 의미가 일부 퇴색되었다. 하지만 시민관장은 외부의 시선이 일부 차단이 되어 오히려 네거리지만 사람이 모이기에 적절한 안정감을 가지게 되었다. 장애인 출입을 위한 경사로와 진입공간을 설치하고 주변으로 잠시 쉬어갈 수 있는 벤치를 배치하여 휴식의 공간을 제공한다. 외부의 시민공간은 내부의 웰컴카페까지 자연스럽게 연결이 되어 내외부의 개방된 시민공간을 완성한다. 웰컴카페와 함께 설치된 다목적 파빌리온은 공회당 공간의 아이덴티티를 유지하면서, 시민 참여형 아트,전시, 워크샵 프로그램을 운영할 수 있도록 지원한다.
- 1층의 주요 보존 대상으로 헌치(HUNCH)된 콘크리트 구조와 몰딩으로 이루어진 천장과 2열로 배치된 기둥으로 이루어진 열주 복도의 공간을 선정한다, 높은 천장고로 이루어진 대형 홀 공간은 현재 유일하게 보존된 공회당 건축의 특이성을 상징한다. 하지만 공간을 사용하기 위해서는 현재의 생활조건을 충족하여야 한다. 냉난방과 환기, 조도 등 현재의 기술의 적용이 필요하다. 기존 공간의 분위기를 유지하며 현재의 기술을 적용하기 위한 시스템 디자인을 제안한다. 2열의 열주 사이를 관통하는 LED광천장 + 공조 통합형 시스템 디자인을 계획하고 통합시스템은 기둥 사이의 보를 통해 프로그램 공간으로 확장된다. 기존의 공간구조를 방해하는 설치물 없이 현재의 생활환경을 충족시킨다. 더불어 LED광천장을 이용하여 RGB컬러의 변화하는 색공간의 창출과 이벤트 행사의 개최도 가능해진다.
- 고정된 전시시설의 설치와 반복되는 전시시설의 설치와 해체는 기존 공간의 물리적 훼손을 가져오며, 기존 공회당 건축의 가치와 맞지 않을 경우 공간의 아우라를 훼손하게 된다. 이에 대한 대안으로 다목적 파빌리온의 설치를 제안한다. 파빌리온의 형태는 공회당 천장의 형태를 차용하여 떠 있는 이중천장을 디자인하여, 동일 디자인 형태의 반복을 통한 공간 안의 공간에 대한 감각을 제공한다. 더불어 상하부로 향하는 조명을 설치하여 내부의 프로그램의 조도 확보와 천장을 향한 간접광을 이용한 전체 조도 확보에도 활용된다. 개별공간으로 활용될 수 있는 프레임에는 전시를 위한 패널과 판매를 위한 선반이 설치되어 시민들의 자발적인 참여프로그램을 운영할 수 있는 시스템을 제공한다.
- 공회당 2층의 첫인상은 해체가 완료된 후 끝없이 이어질 것 같은 폐허의 흔적 같은 복도로 모든 것이 몰입되었다. 복도를 형성하는 양측의 벽면은 개구부의 변경과 공조와 냉난방기의 설치를 위한 배관 타공의 흔적들로 곳곳에 손상이 있었으며 그 사이로 볼 수 없었던 벽체의 속살을 드러내고 있었다. 속살의 모습은 예상과 달리 전벽돌, 적벽돌, 시멘트벽돌이 섞여 마치 모자이크로 된 작업같았다. 공회당이 담은 시간의 일기와 같은 이 복도의 모습을 남기는 것을 제안한다. 복도는 벽체의 페인트 부위만 재도장을 하여 복원한다. 페인트 작업시 기존 천장과 벽체의 구분이 되는 기준선을 유지하여 분리 도색한다. 복도의 현상 유지와 달리 내부 전시실은 화이트 큐브로 계획하여 대비를 극대화한다. 방문객들은 시간여행자의 복도를 통과하며 공회당의 역사를 기록한 상설전시관과 현재의 모습들을 보여주는 새로운 전시들이 있는 기획전시실로 시간여행을 떠나게된다.
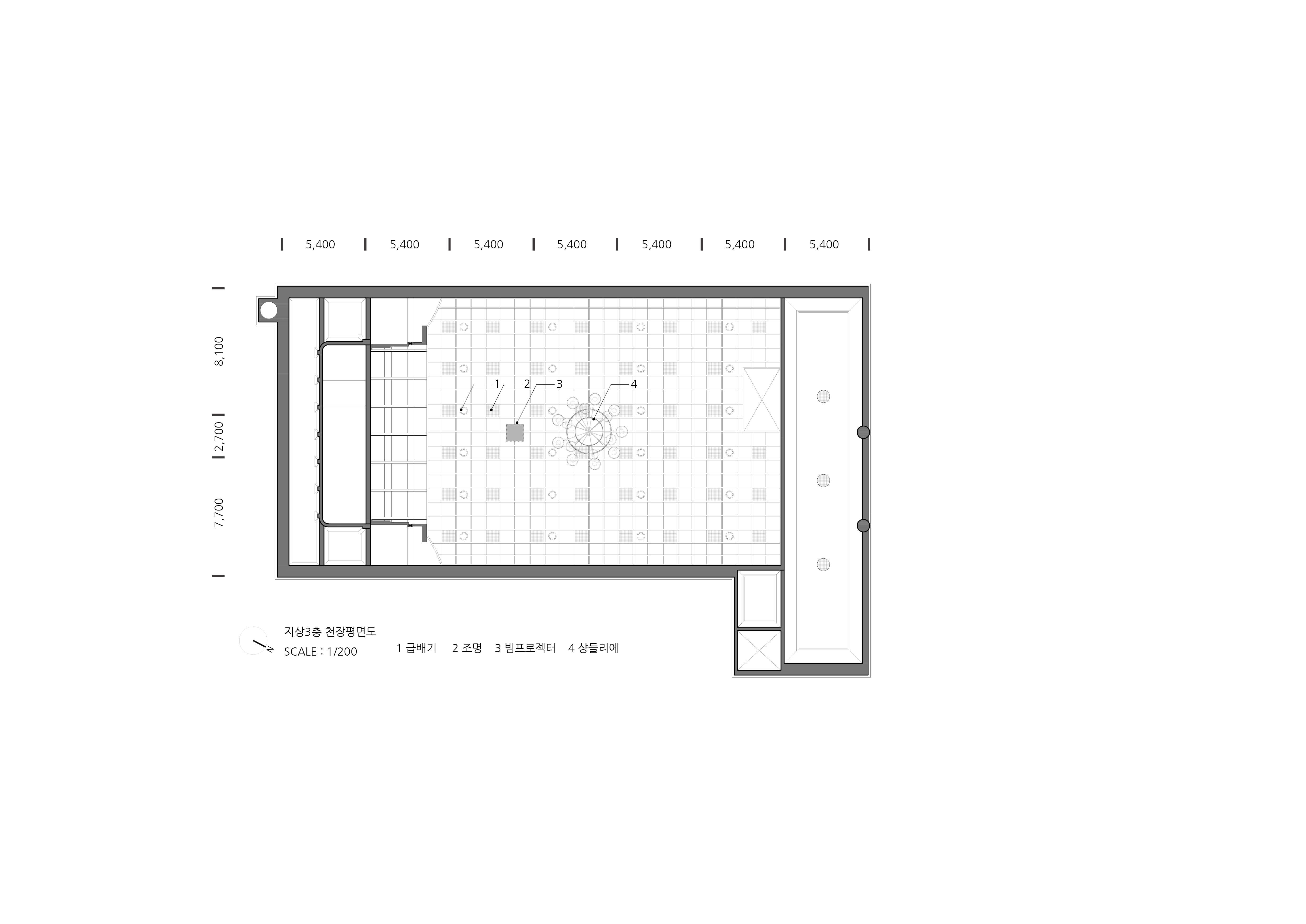
- 공회당 3층의 공간은 9미터의 층고를 이용한 강당을 계획한다. 3층 복원의 주요 요소인 출입구의 아치문과 영사실을 복원한다. 층고를 고려하여 냉난방은 바닥공조를 활용하고, 천장에 공기 순환을 위한 설비를 설치한다. 공연장은 약 3m의 벽으로 구분하고 벽체는 전시와 북카페로 활용을 고려하여 다목적화한다. 2층의 화장실 사용을 고려한 보도를 계획하고, 공연준비를 위한 준비실을 설치한다. 승강기홀은 공연을 고려하여 별도의 공간으로 구획한다. 3층은 공연장으로 사용이 되도록 계획하지만 객석의 수에 비해 좌석의 전체 바닥의 높이 차이는 1m도 되지 않아 적절한 시야각의 확보가 어렵고, 300명의 인원의 대기공간의 부족, 공연장으로 사용시 실 사용률의 저하를 고려하여 북카페를 바탕으로한 다목적 공간에 대한 계획을 제안한다.
- 3층 천장 목재틀은 유관상으로는 보존이 잘 되어있어서 보수를 통한 사용이 가능할 것으로 판단된다. 하지만 기존 천장재의 경우 현장에서 확인했을 때 목재의 부식 상태가 사용이 어렵다고 판단이 된다. 이에 실제적인 천장의 사용성과 안정성을 고려한 재료로 교체를 하는 것이 필요하다. 가공이 용이하고 가벼운 알루미늄 천장재로 교체를 하고 각 그리드의 모듈에 맞춰 조명, 공조, 무대장치를 배치하여 사용하는 천장디자인 계획을 수립한다.
- 옥상의 활용도와 기존 구조의 안정성과 누수의 위험성을 최소화 하기 위해 엘리베이터 설치는 건축물의 주요공간과 분리된 기존의 공조설비 공간을 활용하여 설치한다. 옥상의 공간은 최소한의 활용을 권장하며, 조경의 설치도 건축물의 노후화와 누수의 위험성을 고려하여 위치를 한정하고, 무근콘크리트의 제거, 페데스탈 건식마감을 적용하여 하중에 대한 구조의 부담을 최소화한다.










바운더리스 건축사사무소
3등작_ 바운더리스 건축사사무소(https://boundaries.co.kr/)
대표건축가 김윤수
대지면적 1,649.90㎡ (기존과 동일)
연면적 2,323.15㎡ (기존과 동일)
건축면적 기존과 동일
건폐율 기존과 동일
용적률 기존과 동일
최고높이 기존과 동일
층수 지하 1층, 지상 3층
구조 철근콘크리트구조
대표건축가 김윤수
디자인팀 안보영, 김규영
조경면적 232.50㎡
주차대수 7대
발주처 대전시청 문화유산과
'Plans' 카테고리의 다른 글
| 북원도서관 신축사업 설계용역_ 5등작 / 위즈스케일건축사사무소 (0) | 2025.11.26 |
|---|---|
| (가칭)학곡초등학교 신축공사 설계용역 제안공모_ 당선작 / 건축사사무소 이름 (0) | 2025.11.24 |
| (가칭)거모1중 신축 설계공모_ 당선작 / (주)인오건축사사무소 (0) | 2025.11.21 |
| 익산시 다이로운-모아복합센터 건립사업_ 3등작 / 레이어스건축사사무소 (0) | 2025.11.21 |
| 우신고등학교 강당 겸 체육관 증축사업_ 5등작 / 사이공간건축사사무소 (0) | 2025.11.17 |
마실와이드 | 등록번호 : 서울, 아03630 | 등록일자 : 2015년 03월 11일 | 마실와이드 | 발행ㆍ편집인 : 김명규 | 청소년보호책임자 : 최지희 | 발행소 : 서울시 마포구 월드컵로8길 45-8 1층 | 발행일자 : 매일



