
-도시와 사람, 자연이 관계 맺는 일상의 장소
걷다가 자연스럽게 마주치는 일상 속 장소로써 도시의 흐름과 사람의 움직임, 주변 자연을 따라 형성되는 보행의 연속, 시선의 변화, 프로그램의 경험이 하나의 풍경으로 겹쳐지며 사람들이 머무르고 시간을 공유하는 열린 장소가 됩니다.
-도시의 풍경이 연속적으로 전개되는 여백의 공간
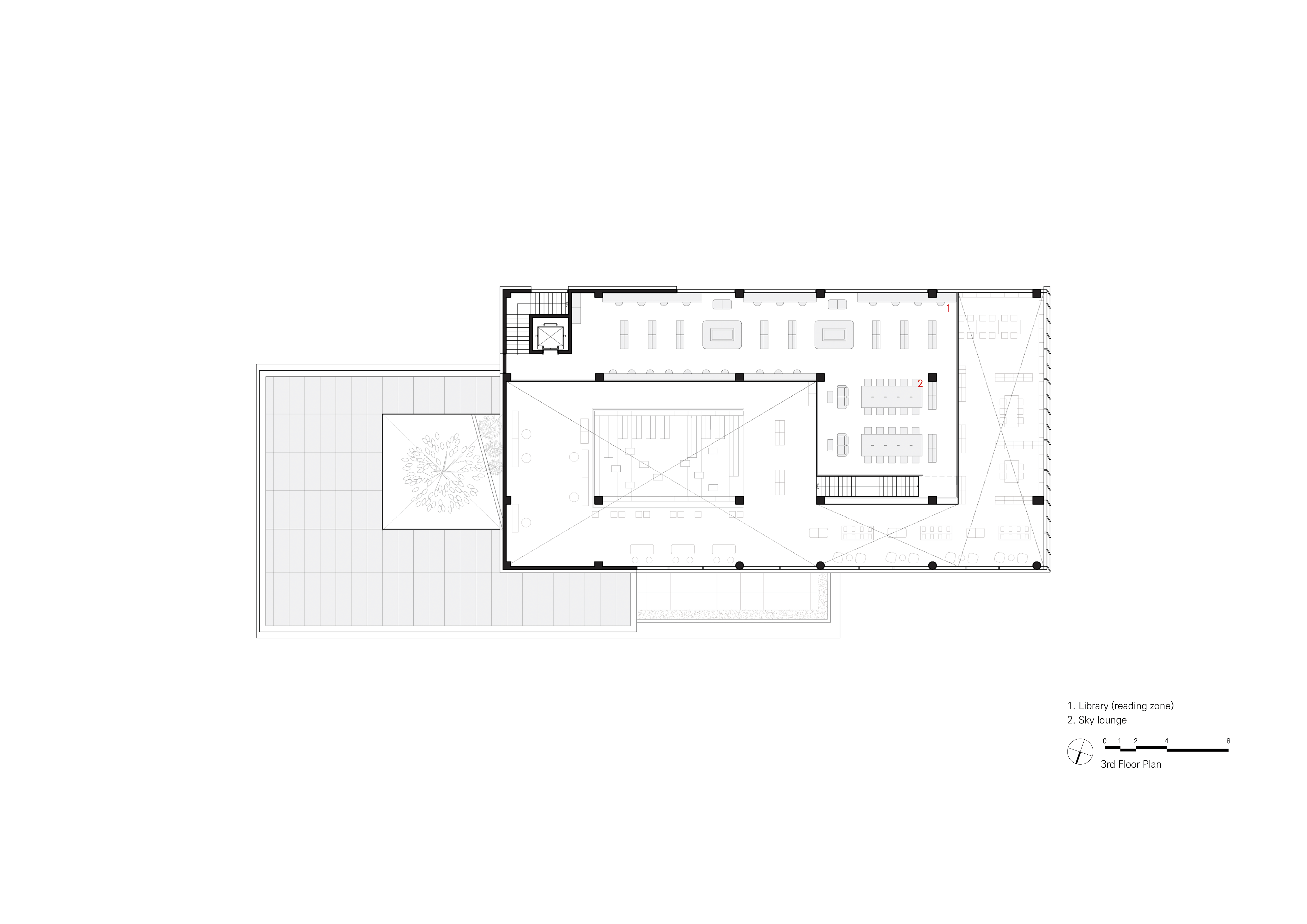
선형적인 수변의 흐름과 도시의 일상이 맞닿는 지점에 위치한 북원도서관은 중첩된 도시 조직 속에서 지역의 일상적 풍경을 새롭게 확장하는 매개 공간으로 자리하고자 합니다. 진입마당에서 받아주는 보행의 흐름은 이동의 속도와 시선의 방향에 따라 서로 다른 장면을 만들어냅니다. 구획된 공간이 아닌 오픈 플랜으로 구성된 도서관은 여백과 틈을 통해 공간의 깊이를 만들어내고 각 영역을 느슨하게 연결하여 연속적인 풍경을 형성합니다.
-흥양천에서 도서관으로 이어지는 생활의 풍경
흥양천을 따라 걷다 보면 일상의 연장이자 휴식의 거점으로서 도서관이 나타납니다. 자연의 흐름이 사람의 동선으로 이어지고, 그 안에서 독서와 만남, 사유와 휴식이 어우러지며 하나의 생활 풍경을 이룹니다.










위즈스케일건축사사무소
5등작_ 위즈스케일건축사사무소(https://www.wizscale.com/)
대표건축가 전영욱,김선광
대지면적 2,637.00㎡
연면적 1,620.94㎡
건축면적 963.23㎡
건폐율 36.53%
용적률 58.87%
최고높이 14.2m
층수 지하 1층, 지상 3층
구조 철근콘크리트구조
대표건축가 전영욱,김선광
디자인팀 이호준, 김신희, 김유상, 강우석
조경면적 297.98㎡
주차대수 31대(장애인주차 1대 포함)
발주처 원주시 시립중앙도서관
'Plans' 카테고리의 다른 글
| 사천시 공공산후조리원 건립사업 설계공모_ 3등작 / 오앤에이건축사사무소 (0) | 2025.12.01 |
|---|---|
| 봉화노인복지센터 기능보강사업 설계공모_ 4등작 / 안들 건축사사무소 (0) | 2025.11.26 |
| (가칭)학곡초등학교 신축공사 설계용역 제안공모_ 당선작 / 건축사사무소 이름 (0) | 2025.11.24 |
| 첫 대전시청사 보존 및 활용을 위한 복원보수 공사 설계공모(제안공모)_ 3등작 / 바운더리스 건축사사무소 (0) | 2025.11.24 |
| (가칭)거모1중 신축 설계공모_ 당선작 / (주)인오건축사사무소 (0) | 2025.11.21 |
마실와이드 | 등록번호 : 서울, 아03630 | 등록일자 : 2015년 03월 11일 | 마실와이드 | 발행ㆍ편집인 : 김명규 | 청소년보호책임자 : 최지희 | 발행소 : 서울시 마포구 월드컵로8길 45-8 1층 | 발행일자 : 매일



